
Ile kosztuje przekształcenie budynku gospodarczego na mieszkalny? Sprawdź koszty i pułapki
Ile kosztuje przekształcenie budynku gospodarczego na mieszkalny? Sprawdź średnie ceny, czynniki wpływające na koszty i unikaj pułapek w procesie.
Ile kosztuje przekształcenie budynku gospodarczego na mieszkalny? Sprawdź koszty i pułapki
Ile kosztuje przekształcenie budynku gospodarczego na mieszkalny? Sprawdź średnie ceny, czynniki wpływające na koszty i unikaj pułapek w procesie.
Ile wynosi podatek od budynku gospodarczego? Sprawdź stawki i zmiany
Poznaj odpowiedź na pytanie, ile wynosi podatek od budynku gospodarczego. Sprawdź stawki oraz zmiany w przepisach, które mogą wpłynąć na Twoje koszty.
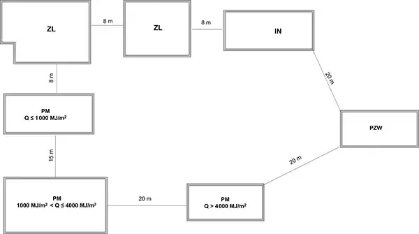
Warunki techniczne jakim powinny odpowiadać budynki - uniknij błędów budowlanych
Zrozum, jakie są warunki techniczne, jakim powinny odpowiadać budynki, aby uniknąć błędów budowlanych i zapewnić bezpieczeństwo oraz komfort użytkowania.
Jak sprawdzić czy budynek jest zabytkiem i uniknąć nieprzyjemności
Sprawdź, jak sprawdzić czy budynek jest zabytkiem, aby uniknąć nieprzyjemności związanych z jego użytkowaniem i dowiedz się o ważnych krokach prawnych.
Oś budynku co to jest i dlaczego jest kluczowa w budownictwie
Poznaj, czym jest oś budynku i dlaczego odgrywa kluczową rolę w budownictwie. Dowiedz się, jak wpływa na stabilność i estetykę konstrukcji.
Termomodernizacja budynku co to jest i jak poprawia efektywność energetyczną
Termomodernizacja budynku co to jest? Dowiedz się, jak poprawić efektywność energetyczną i obniżyć koszty ogrzewania dzięki nowoczesnym rozwiązaniom.
Czy od budynku gospodarczego płaci się podatek? Sprawdź zasady i wyjątki
Sprawdź, czy od budynku gospodarczego płaci się podatek. Poznaj zasady, wyjątki i warunki zwolnienia, aby uniknąć nieprzyjemnych niespodzianek.
Najwyższy budynek we Wrocławiu: ile ma pięter i dlaczego to ważne?
Poznaj najwyższy budynek we Wrocławiu i dowiedz się, ile ma pięter oraz dlaczego jego wysokość jest tak istotna dla mieszkańców i rozwoju miasta.
Warunki jakim powinny odpowiadać budynki i ich usytuowanie w praktyce
Sprawdź, jakie warunki jakim powinny odpowiadać budynki i ich usytuowanie. Poznaj kluczowe przepisy i praktyczne przykłady dla bezpiecznej budowy.
Budynek gospodarczy 300m2 na zgłoszenie – co musisz wiedzieć?
Budowa budynku gospodarczego 300m2 na zgłoszenie od kiedy? Sprawdź przepisy, wymagania i korzyści związane z budową obiektów rolniczych.